
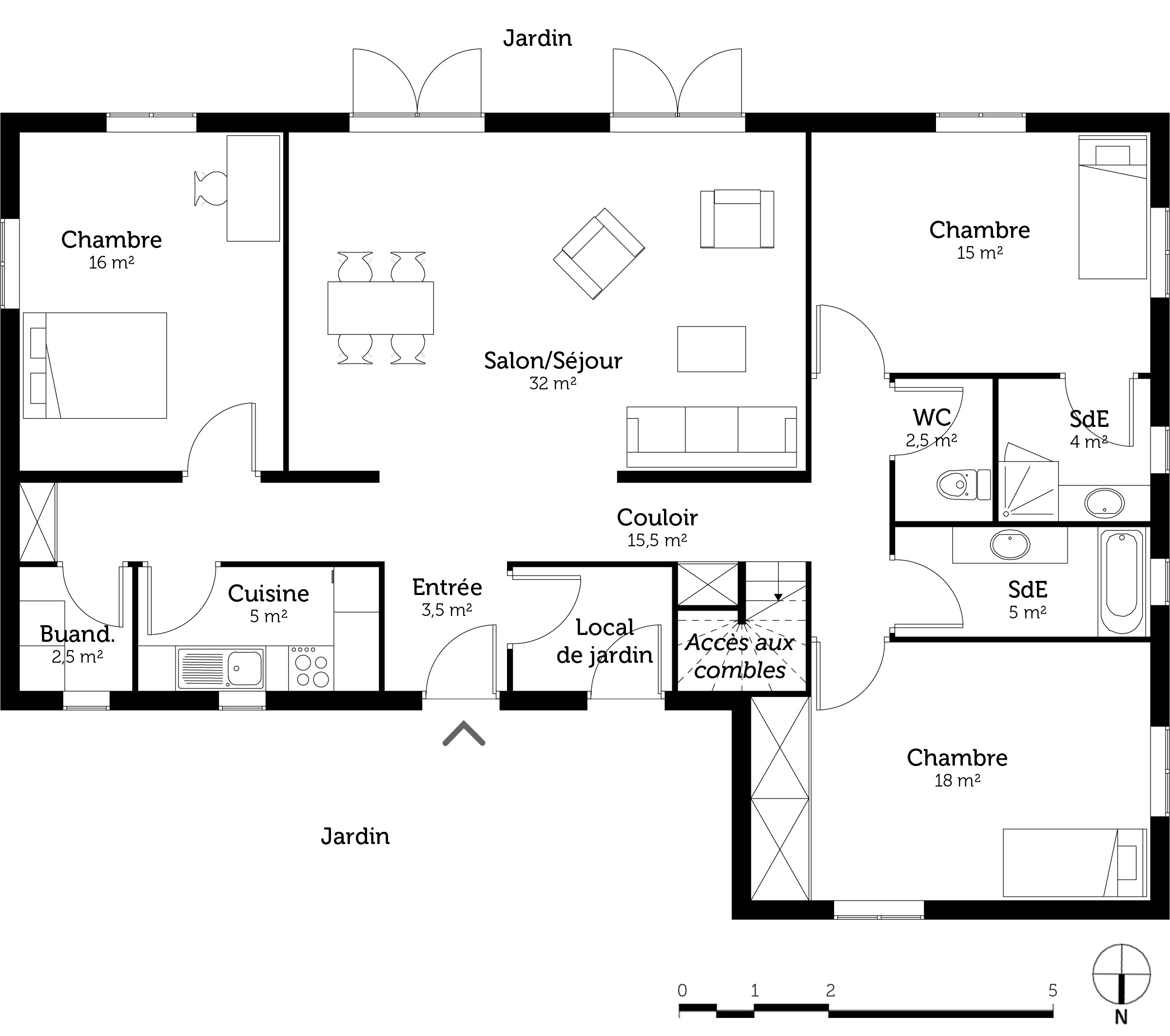
Comment déterminer la taille parfaite d'une chambre à coucher ? La superficie d'une chambre, loin d'être une simple mesure, influence grandement notre confort et notre bien-être. Trop petite, elle peut engendrer une sensation d'oppression, tandis que trop grande, elle peut paraître froide et impersonnelle. Cet article explore les différentes dimensions d'une chambre, des normes généralement admises aux astuces pour optimiser l'espace disponible.
Il n'existe pas de superficie standard universelle pour une chambre à coucher. Les recommandations varient en fonction des pays, des réglementations locales et du type d'habitation. Cependant, on peut observer des tendances et des superficies moyennes qui permettent de se faire une idée des dimensions idéales. Ces dimensions moyennes prennent en compte l'espace nécessaire pour un lit, une armoire, une commode et une circulation aisée.
L'histoire de l'habitat humain montre une évolution des dimensions des chambres. Autrefois, les espaces étaient souvent réduits au minimum, privilégiant la fonction pratique à l'espace personnel. Aujourd'hui, la chambre est devenue un véritable sanctuaire, un lieu de repos et d'intimité, et sa superficie reflète cette importance accrue. L'optimisation de l'espace disponible est un enjeu crucial, particulièrement dans les zones urbaines où le prix du mètre carré est élevé. Aménager une petite chambre de manière fonctionnelle et agréable devient alors un véritable défi.
Une superficie adaptée pour une chambre permet d'agencer le mobilier de manière harmonieuse et de créer une ambiance propice à la détente. Une chambre trop exiguë peut entraîner des difficultés de circulation et un sentiment de claustrophobie. A l'inverse, une chambre trop vaste peut paraître vide et impersonnelle. La taille idéale dépendra donc des besoins et des préférences de chacun.
Pour une chambre parentale, une surface minimum de 12m² est généralement conseillée pour assurer un confort optimal. Cela permet d'installer un lit double, des rangements et de circuler librement. Pour une chambre d'enfant ou d'adolescent, une superficie de 9m² peut être suffisante, mais l'idéal est de prévoir un espace plus grand si possible, afin d'intégrer un espace de travail ou de jeu.
Aménager une petite surface nécessite une réflexion particulière sur l'optimisation de l'espace. Des meubles multifonctions, des rangements astucieux et des couleurs claires peuvent aider à agrandir visuellement la pièce. L'utilisation de miroirs est également une astuce efficace pour créer une illusion de profondeur.
Avantages et Inconvénients d'une grande surface de chambre
Bien qu'une grande chambre offre de nombreux avantages, il est important de considérer également les inconvénients potentiels :
Conseils pour optimiser l'espace d'une chambre : utiliser des meubles multifonctions, privilégier les couleurs claires, installer des miroirs, optimiser les rangements verticaux.
FAQ sur les dimensions des chambres
1. Quelle est la surface minimale pour une chambre ? Il n'y a pas de surface minimale légale pour une chambre en France, mais une surface de 9m² est généralement considérée comme le minimum pour une chambre individuelle.
2. Quelle est la surface idéale pour une chambre parentale ? Une surface de 12m² minimum est conseillée pour une chambre parentale.
3. Comment aménager une petite chambre ? Utiliser des meubles multifonctions, des rangements optimisés et des couleurs claires.
4. Est-il important de respecter les normes de surface ? Les normes servent de guide, mais l'important est de créer un espace confortable et fonctionnel.
5. Comment calculer la surface d'une chambre ? Longueur x largeur = surface.
6. Quels sont les avantages d'une grande chambre ? Plus d'espace pour circuler, plus de possibilités d'aménagement.
7. Quels sont les inconvénients d'une petite chambre ? Sentiment d'oppression, difficulté d'aménagement.
8. Comment choisir la taille de son lit en fonction de la taille de sa chambre ? Adapter la taille du lit à la surface disponible pour ne pas encombrer l'espace.
En conclusion, la surface d'une chambre est un élément essentiel à prendre en compte pour créer un espace de vie confortable et fonctionnel. Qu'il s'agisse d'une petite chambre ou d'une grande suite parentale, l'optimisation de l'espace et l'aménagement judicieux du mobilier permettent de créer une ambiance propice au repos et à la détente. En tenant compte des conseils et astuces présentés dans cet article, vous pourrez aménager votre chambre de manière à en faire un véritable havre de paix. N'hésitez pas à explorer différentes options et à adapter les recommandations à vos besoins et à vos préférences pour créer un espace qui vous ressemble.
Decryptage des images png demande daide
Regarder la ard en direct maintenant votre guide complet
Les 7 composants essentiels dun velo